Skip to content
IMG_6283

Linz am Rhein

Linz # Neubau # Einbauküche

Objektdaten

Objektart
Wohnung
externe Objnr
004_YS-944-WE3
Wohnfläche
94 m²
Zimmer
3

Adresse

PLZ
53545
Ort
Linz am Rhein
Kaltmiete
890 €

Informationen

Baujahr
2020
Zustand
Neuwertig
Nutzungsart
Wohnen
Vermarktungsart
Miete

Details

Stellplätze
1
Stellplatzart
Stellplatz im Freien
Gäste WC
Nein
Schlafzimmer
2
Balkon
Ja
Terrasse
Nein
Provision
Nein
Nebenkosten
200 €
Warmmiete
1.120 €
Kaution
1.780 €

Description

Im Auftrag des Eigentümers vermieten wir diese Neubauwohnung in Linz.

Die Wohnung ist auf Grund der Größe für einen Single, ein Paar oder eine Familie mit einem Kind.

Das Objekt wurde erst in Jahr 2020 fertiggestellt. Es handelt sich somit um eine hochwertigen und energieeffizienten Neubau.

Die 5 Wohnungen sind dabei auf drei Etagen aufgeteilt: Erdgeschoss, erstes Obergeschoss und Dachgeschoss. Aufgrund der Hanglage befindet sich dabei des Erdgeschoss erhöht auf Obergeschossebene (siehe beigefügter Querschnitt).

Alle Wohnungen sind mit einem Laminatboden ausgestattet und überzeugen über den schönen Balkon mit Aussicht. Die Raumgestaltung ist bei der zu vermietenden Einheit offen gestaltet, d.h. die offenen und hochwertigen Einbauküche im Wohn-Essbereich bildet den kommunikativen Mittelpunkt der Wohnung. Desweiteren stehen Ihnen zwei Schlafzimmer zur Verfügung. Das Elternschlafzimmer bietet Ihnen dabei die Möglichkeit eines begehbaren Kleiderraums (vom Schlafbereich mittels eines Mauervorsprungs abgetrennt). Das Badezimmer verfügt über eine Wanne und Dusche. Zudem bietet eine Abstellkammer in der Wohnung zusätzlichen Stauraum.

Beheizt wird die Wohnung mittels einer Gaszentralheizug über eine komfortable Fußbodenheizung, welche separat in jedem Raum gesteuert werden kann.

Die hochwertige Einbauküche verbleibt in der Wohnung, hierfür wird ein monatlicher Abschlag von 115 Euro berechnet. Zudem können auf Wunsch und gegen Aufpreis auch die Möbel mitvermietet werden.

Allen Einheiten ist ein Kellerabteil sowie ein Stellplatz vor dem Haus zugeordnet.




Zum Video

Equipment

DATEN ENERGIEAUSWEIS:
Bedarfsausweis, 51 kWh/qm*a), wesentl. Energieträger Gas, Baujahr Gebäude 2020

MIETE:
890 Euro monatliche Kaltmiete
115 Euro Abschlag Küche
30 Euro Stellplatz
200 Euro Nebenkosten
1.235 Euro Gesamtwarmmiete

DATEN ALLGEMEIN:
-Neubau
-Beethovenstraße 47, 53545 Linz
-1 Obergeschoß
-5 Wohnungen
-Stellplatz vor der Tür
-Einbauküche
-Auf Wunsch (und Aufpreis) können die Möbel mitvermietet werden
-Kellerabteil
-Waschmaschine kann in der Wohnung gestellt werden
-Laminatboden
-Fenster: Kunststofffenster mit 3x4 mm Isolierverglasung U-Wert 0,6 mit Rollladen
-Fußbodenheizung (einzeln regulierbar in den Räumen)
-Gegensprechanlage mit Video
-Bad mit Wanne und Dusche
-offene Küche
-Balkon mit Aussicht

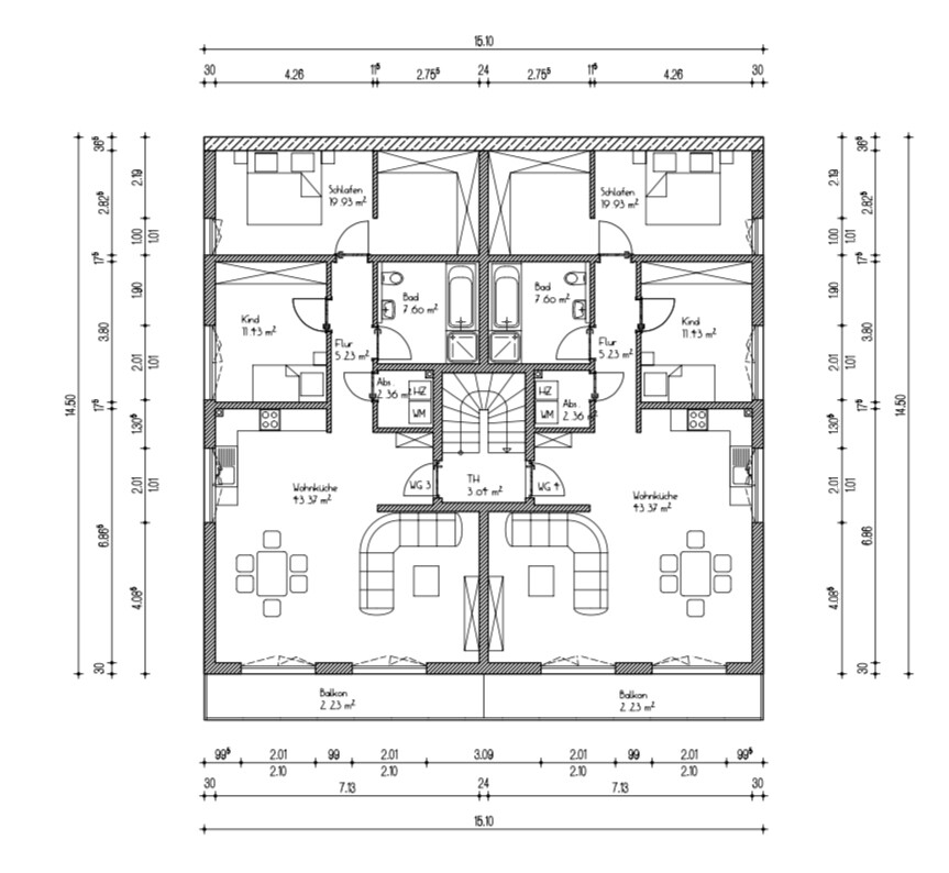
RAUMAUTEILUNG WE 3:
-Obergeschoss
-Wohn-Esszimmer mit offener Küche
-Einbauküche
-2 Schlafzimmer (plus Ankleidezimmer)
-Badezimmer
-Diele
-Abstelle

Location

Das Objekt befindet sich in der Beethovenstraße 47 in Linz in einem ruhigen Wohngebiet in Hanglage. Einkaufsmöglichkeiten befinden sich in unmittelbarer Nähe sowie im Stadtkern von Linz.

Linz am Rhein ist eine Stadt im Landkreis Neuwied im Norden von Rheinland-Pfalz nahe der Grenze zu Nordrhein-Westfalen, rund 25 Kilometer südlich des Stadtzentrums von Bonn. Sie gehört der gleichnamigen Verbandsgemeinde an und ist deren Verwaltungssitz. Linz ist gemäß Landesplanung als Mittelzentrum ausgewiesen.

Karte

Other Information

Wir nehmen uns gerne Zeit für Sie! Bitte melden Sie sich für ein persönliches Informationsgespräch telefonisch oder per E-Mail:

Tel.: 0228 - 538 796.11 oder 0173 -796 81 38
oder
ysabel.schoepf@arealis-immobilien.de

(Alle Angaben sind nach bestem Wissen und Gewissen gemacht. Der Makler haftet nicht für Irrtümer oder Zwischenverwertung.)

Energieausweis

  • A+
  • A
  • B
  • C
  • D
  • E
  • F
  • G
  • H
  • 0
  • 25
  • 50
  • 75
  • 100
  • 125
  • 150
  • 175
  • 200
  • > 225
Baujahr
2020
Endenergiebedarf
51 kWh/(m²a)
Energieausweis
Bedarfsausweis
Energieausweis gültig bis
22.05.2025
Energieeffizienzklasse
B

Grundriss

Videos

Ansprechpartner

Ysabel Schöpf

Ysabel Schöpf

Immobilienberaterin
Dipl. Betriebswirtin
Geprüfte Immobilienbewerterin
(Sprengnetter)

Schöpf & Co. Immobilien
Akazienweg 2-10
53177 Bonn

ysabel.schoepf@schoepf-co.de +49(228) 538796-11

Immobilie anfragen

Ähnliche Immobilien

Hausansicht

Bonn

VERMIETET

Garten

Bonn

VERMIETET-Bonn

IMG_6285

Linz am Rhein

Linz # Neubau # schöne Aussicht

Luftaufnahmen

Bonn

# ruhige Lage # Garage # klein aber fein

Hausansicht

Bonn

DG # Loggia # Garage

Wohnzimmer

Bonn

# Dachgeschoss # modern # beliebte Lage #

Immobilie anfragen

Bitte füllen Sie dieses Feld aus.
Bitte füllen Sie dieses Feld aus.
Bitte füllen Sie dieses Feld aus.
Bitte füllen Sie dieses Feld aus.
Bitte füllen Sie dieses Feld aus.
Bitte füllen Sie dieses Feld aus.
Bitte füllen Sie dieses Feld aus.
Bitte füllen Sie dieses Feld aus.
Bitte klicken Sie dieses Kästchen an, um fortfahren zu können.