Skip to content
Garten

Bonn

VERMIETET-Bonn

Description

DETAILS

+ Etagenwohnung / Erdgeschoss
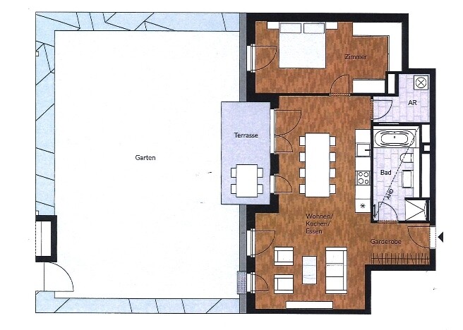
+ Wohnfläche: 80,5 qm
+ Zimmer: 2,5
+ Schlafzimmer. 1
+ Garage: ja
+ Miete: VERMIETET
+ Provision: Nein


BESCHREIBUNG

Im Auftrag des Eigentümers bieten wir diese Neubau-Wohnung zur Vermietung an.

Die ansprechende und hochwertige Erdgeschosswohnung befindet sich in einem Neubaukomplex mit ansprechender Fassade und einer schönen Terrassenstruktur, die den Gebäudekomplex auflockert. Das moderne Gebäude setzt ein markantes Zeichen im gewachsenen Stadtteil von Bad Godesberg.

Eine hochwertige sowie elegante Ausstattung sind die Besonderheiten dieser Terrassenwohnung. Vom schönen Parkettboden mit Fußbodenheizung über elektrische Rollläden bis hin zur Video-Gegensprechanlage bietet die Wohnung vieles, was Sie zum Wohlfühlen brauchen.

Sie betreten die Wohnung über eine Diele, die Sie sodann in das große und offene Wohn- Esszimmer führt. Hier sind ebenfalls die Anschlüsse für die Küche vorgesehen, so dass dieser Raum den kommunikativen Mittelpunkt der Wohnung darstellt. Die Größe des Raumes ermöglicht Ihnen zudem die Abteilung/Unterteilung mittels eines Raumteilers für einen separaten Arbeitsbereich.

Die lichte Raumhöhe der Wohnung beträgt ca. 2,75 m und vermittelt somit ein großzügiges und offenes Raumgefühl. Die bodentiefen Fensteranlagen lassen die gesamte Wohnung lichtdurchflutet erscheinen und ermöglichen Ihnen Zutritt zu Ihrer eigenen Terrasse und Ihrem eignen Gartenanteil, der sich über die gesamte Länge der Wohnung erstreckt

Das Schlafzimmer schließt direkt an diesen Wohn-Essbereich an und hat ebenfalls direkten Gartenzugang.

Das innenliegende Badezimmer ist mit einer Badewanne und eine ebenerdige Dusche ausgestattet.

Ein Hauswirtschaftraum, der direkt vom Wohn-Essbereich aus zugänglich ist, bietet Ihnen Stauraum in der Wohnung und zudem Platz für Ihre Waschmaschine.

Komplettiert wird das Angebot über eine eigenen Garagenstellplatz und ein Kellerabteil.

Equipment

DATEN ZUM ENERGIEAUSWEIS:

Das Bauvorhaben wurde entsprechend den Anforderungen der Verordnung über energiesparenden Wärmeschutz und energiesparende Anlagentechnik (Energieeinsparverordnung EnEV 2014) in der Fassung 2013 mit dem seit 2016 geltenden erhöhten Standard erstellt. Der Energieausweis liegt zur Besichtigung vor.

*****************************************************************************************************
AUSSTATTUNG ALLGEMEIN

- Neubaukomplex
- ca. 260 m2 große geschützte Spielfläche im Innenhof
- Ca. 1.000 m2 parkähnlich angelegte Freianlage Große gemeinschaftliche Grünfläche
- Fahrstuhl vom Keller bis ins oberste Geschoss
- Tiefgarage mit 37 Stellplätzen
- Fahrradraum
- Heizung: Die Grundwasserwärmepumpe arbeitet in Verbindung mit einem Gas-Brennwertkessel
- Warmwasseraufbereitung erfolgt zentral

****************************************************************************************************
AUSSTATTUNG WOHNUNG:

- offenes Wohn-Esszimmer mit Vorrichtung für eine Küche, 1 Schlafzimmer, Bad, 1 Hauswirtschaftsraum in der Wohnung, Kellerabteil, Garagenstellplatz
- Raumhöhe ca. 2,75 m
- Fußbodenheizung, welche sich über Raumthermostate regulieren lässt
- Parkettboden
- Video-Gegensprechanlage
- 3fach isolierverglaste Fenster im Kunststoffrahmen
- abschliessbare Fenster und Terrassentüren mit Aufhebelschutzbeschlägen
- Elektrische Rollläden
- gespachtelte Wände, weiß gestrichen
- Bad: innenliegend, Wanne, ebenerdige Dusche, WC, Waschbecken

Location

Alles, was Sie brauchen. Und noch viel mehr! Das Objekt bietet durch seine zentrale Lage an einer der wichtigsten Schlagadern von Bad Godesberg die volle Vielfalt an Einkaufsmöglichkeiten, Schulen, Kitas, Kultur und mehr in nächster Nähe. Zu allen Geschäften für den täglichen Bedarf, Restaurants oder Ärzten sind es nur wenige Minuten zu Fuß – die Fußgängerzone am Theater- platz ist nur 800 Meter entfernt. Zwei Kitas und drei Schulen liegen nur einen kurzen Schulweg entfernt. Und noch ein Plus: Auch ins Grüne ist es ganz nah!

Schnell mal ins Siebengebirge? Kurze Auszeit im Kottenforst? Oder lieber zum Airport, nach Köln oder in die Bonner City? Egal, was Sie vorhaben: Die Wohnung ist Ihr idealer Startpunkt für alle Ziele, auf allen Wegen. Weniger als 500 Meter sind es zu U-Bahn- und Regio-Bahnhöfen mit direkter Anbindung an Bonn-Zentrum. Und auch mit dem Auto sind Sie gut unterwegs, denn die Koblenzer Straße ist eine direkte Verlängerung der B9: So sind Sie in kaum zehn Minuten auf der Autobahn.

Karte

Other Information

Wir nehmen uns gerne Zeit für Sie! Bitte melden Sie sich für ein persönliches Informationsgespräch telefonisch oder per E-Mail:

Tel.: 0228 - 538 796.11 oder 0173 -796 81 38
oder
ysabel.schoepf@arealis-immobilien.de


(Alle Angaben sind nach bestem Wissen und Gewissen gemacht. Der Makler haftet nicht für Irrtümer oder Zwischenverwertung.)

Energieausweis

Baujahr
2020

Grundriss

Videos

Ansprechpartner

Ysabel Schöpf

Ysabel Schöpf

Immobilienberaterin
Dipl. Betriebswirtin
Geprüfte Immobilienbewerterin
(Sprengnetter)

Schöpf & Co. Immobilien
Akazienweg 2-10
53177 Bonn

ysabel.schoepf@schoepf-co.de +49(228) 538796-11

Immobilie anfragen

Immobilie anfragen

Bitte füllen Sie dieses Feld aus.
Bitte füllen Sie dieses Feld aus.
Bitte füllen Sie dieses Feld aus.
Bitte füllen Sie dieses Feld aus.
Bitte füllen Sie dieses Feld aus.
Bitte füllen Sie dieses Feld aus.
Bitte füllen Sie dieses Feld aus.
Bitte füllen Sie dieses Feld aus.
Bitte klicken Sie dieses Kästchen an, um fortfahren zu können.