Skip to content
Aussenansicht

Bonn / Castell

großzügiger Bungalow # beliebte Lage Bonn Castell #

Objektdaten

Objektart
Haus
externe Objnr
YS-9116.5
Wohnfläche
138 m²
Grundstücksgröße
320 m²
Zimmer
4

Adresse

PLZ
53111
Ort
Bonn / Castell
Kaufpreis
750.000 €

Informationen

Baujahr
1963
Zustand
Modernisiert
Nutzungsart
Wohnen
Vermarktungsart
Kauf

Details

Stellplatzart
Garage
Badezimmer
1
Gäste WC
Ja
Schlafzimmer
3
Balkon
Nein
Terrasse
Ja
Provision
3,57% inkl. gesetzl. MwSt

Description

Im Auftrag der Eigentümer präsentieren wir Ihnen diesen charmanten Bungalow in ruhiger Lage von Bonn-Castell mit großzügigem Platzangebot. Eingebettet in eine etablierte, grüne Umgebung und in unmittelbarer Nähe zum Rhein genießen Sie hier nicht nur wohltuende Ruhe, sondern profitieren zugleich von einer zentralen Lage mit hervorragenden Einkaufsmöglichkeiten sowie optimalen Verkehrsanbindungen.

Der massiv errichtete Flachdach-Bungalow wurde 1963 auf einem ca. 320 m² großen Grundstück erbaut und erstreckt sich ebenerdig über rund 138 m² Wohnfläche zuzüglich eines Kellergeschosses. Eine Garage im nahegelegenen Garagenhof komplettiert dieses attraktive Angebot.

Das Haus befindet sich in einem sehr gepflegten und renovierten Zustand. 2012 wurde der Bungalow umfassend und geschmackvoll modernisiert:
Die Bäder wurden komplett neu gestaltet, der Grundriss verändert, und die Böden überarbeitet. Die gesamte Elektrik wurde erneuert und befindet sich mittels 5-adriger Verdrahtung, Hifi-Kabel Verdrahtung (Dolby Surround fähig) und teilweiser Koax-Verdrahtung auf modernem Standard.
Die Heizkörper wurden teilweise ausgetauscht und versetzt, im Badezimmer wurde zudem eine Fußbodenheizung eingebaut. Ebenso wurde eine neue, hochwertige Küche installiert.
An der Eingangs- und Terrassentür sowie an den Fensteranlagen wurde eine Alarmanlage angebracht. Im Zuge der Modernisierung wurde auch der Garten vollständig neu gestaltet und bepflanzt. Im Jahr 2020 wurde das Dach neu gedeckt und gedämmt. Die Fenster im Wohnbereich sowie die Terrassentür wurden erst im Jahr 2021 erneuert.

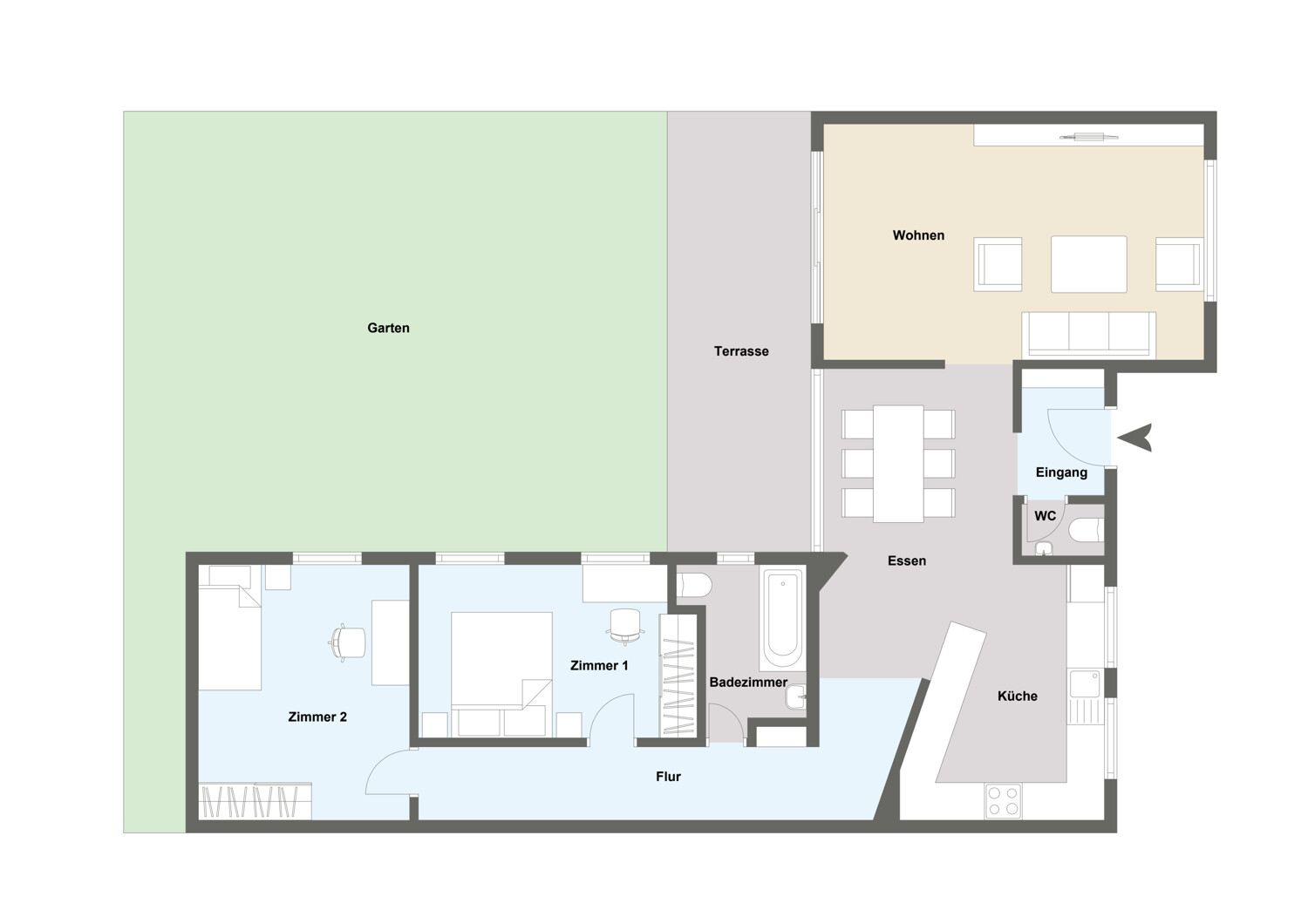
Der großzügige Eingangsbereich führt Sie in den lichtdurchfluteten Essbereich samt hochwertiger und offener Küche, der als kommunikativer Mittelpunkt des Hauses dient. Große Fensterfronten schaffen eine einladende Atmosphäre und bieten einen herrlichen Blick in den schön angelegten Garten. Dieser überzeugt mit seiner hochwertigen Terrasse in Kombination mit einem Wasserbecken samt Wasserspiel. Am Ende des terrassierten Gartens finden Sie nochmals ein einladendes Holzdeck, wo Sie die Sonnenstunden ungestört genießen können. Eine Beregnungsanlage bietet zusätzlichen Komfort.

Vom Essbereich aus erreichen Sie durch einen deckenhohen Wanddurchbruch das geräumige und helle Wohnzimmer. Eine große Fensterfront versorgt den Raum stets mit Sonnenlicht und einem schönen Blick in den Garten. Der gesamte Wohn- und Essbereich ist mit Eichen-Stäbchenparkett ausgestattet.

Zwei kleine Stufen führen Sie vom Essbereich in den Flur, der die beiden Schlafzimmer sowie das moderne Wannenbad erschließt.

Durch ein eingebautes Skylight wird der Flur kontinuierlich mit Tageslicht versorgt. Das größere Schlafzimmer lässt sich bei Bedarf problemlos teilen, sodass ein zusätzliches Zimmer geschaffen werden kann.

Der Flur und die Schlafräume sind mit hochwertigem Buchenparkett ausgestattet. Im gesamten Geschoss wurden die Decken an den Rändern abgehängt, sodass ein angenehmer indirekter Lichteinfall entsteht.

Im Kellergeschoss stehen ein zusätzlicher Hobbyraum sowie großzügige Nutz- und Lagerflächen zur Verfügung. Im Waschkeller können Sie Ihre Waschmaschine bequem unterbringen.

Ihr Auto parken Sie in der dazugehörigen Garage im nahegelegenen Garagenhof, der nur wenige Meter entfernt liegt. Zudem steht Ihnen vor der Garage noch ein weitere Stellplatz zur Verfügung.

Der Bungalow wurde zuletzt überwiegend als Büro genutzt. Die Nutzung erfolgte jedoch immer auf Basis der bestehenden Wohnraumwidmung – eine Umnutzung fand nicht statt.
Vorteil für Käufer: Durch die eher „schonende“ Nutzung der letzten Jahre weisen die Räume nur geringe Abnutzungsspuren auf und sind in einem entsprechend gepflegten Zustand.

Der Bunalow wird im bezugsfreien Zustand verkauft.

Equipment

Informationen zum Energieausweis:
Baujahr 1963, Verbrauchssausweis, 119,8 kWh/(qm*a), D, Fernwärme

*Allgemeine Daten*
umfassend renoviert in 2012 / 2020 / 2022 -MEHR ANGABEN im ausführlichen Exposé !
Grundstück 320 m²
Wohnfläche 138 m²
Garage und Stellplatz vor der Garage
Technik & Heizung
Fernwärme
zentrale Warmwasseraufbereitung (Warmwasserspeicher)

*Raumaufteilung*
Wohnzimmer 1
Essbereich 1
Küche 1
Schlafzimmer 2 (problemlos auch in 3 Schlafzimmer aufteilbar)
Hobbyraum 1
Eingangsdiele 1
Flur 1
Bad 1
WC 1
Terrasse 1
Garage 1
Garten
Keller und Kriechkeller


*Ausstattung (Innen)*

Sanitär:
WC 1: Waschbecken, WC, Spiegel
Bad: Emaillie Dusch-/Badewanne, Citterio Design WC, Antonio Lupi Waschtisch, Dornbracht Armatur, Flächig hinterleuchteter Spiegel, Fenster

Böden:
Diele: Travertin Naturstein
Wohnzimmer, Essbereich: Eichen -Stäbchenparkett
Flur und Schlafzimmer: Buchenparkett
Bad und Küche: Flächenverschweißter Linoleum

Wände:
Wohnräume: gespachtelt und gestrichen
Bad und Gäste-WC: Glasmosaik-Fliesen

Decken:
weiß gestrichen
teilweise abgehangen für indirektes Licht

Fenster:
Fenster in 2-Fachverglasung
Rollläden

Türen:
Innentüren hochglanz weiß lackiert

Küche
Vollflächig, fugenlos verschweißte Corian-Arbeitsplatte
Hochwertige Marken-Elektrogeräte (Miele, AEG, Liebherr, Gutmann)

Außenbereich:
Garten:
hochwertiges, großzügiges Holzdeck
hochwertige Bepflanzung
Wasserbecken mit Zapfstelle
Beregnungsanlage
Terrasse
Garage auf dem Garagenhof und Stellplatz vor der Garage


*Allgemeinausstattung (laut Baubeschreibung)* -MEHR ANGABEN im ausführlichen Exposé !

*Allgemeine Angaben * Technik & Heizung -MEHR ANGABEN im ausführlichen Exposé !

*Aufteilung Wohnfläche: 138,43 m²* -MEHR ANGABEN im ausführlichen Exposé !

Location

Der Bungalow liegt im Stadtteil Bonn-Castell, einem gefragten Wohngebiet direkt am Rhein. Das Quartier bietet eine sehr gute Kombination aus ruhiger Wohnlage, kurzer Entfernung zur Bonner Innenstadt und vielfältigen Einkaufs-, Kultur- und Freizeitmöglichkeiten.

Für den täglichen Bedarf stehen gleich mehrere Einkaufsmöglichkeiten in unmittelbarer Nähe zur Verfügung. Nur wenige Gehminuten entfernt befindet sich ein Edeka-Supermarkt, darüber hinaus gibt es Bäckereien, kleine Imbisse und Cafés in den angrenzenden Straßen. Entlang der Kölnstraße, die das Viertel westlich begrenzt, finden sich zahlreiche weitere Geschäfte, darunter Drogeriemärkte, Apotheken, kleine Boutiquen und Gastronomiebetriebe. Ebenso ist eine große Wiese mit Spielplatz erreichbar.

Des Weiteren sind mehrere Kindergärten und Grundschulen in unmittelbarer, bis fußläufiger Nähe. Auch die Gesamtschule (Marie Kahle Gesamtschule) ist nur einen Steinwurf entfernt .
Auch die Bonner Altstadt ist als Kultur- und Ausgehviertel in unserer fußläufigen, unmittelbaren Nähe.

Für ein größeres Einkaufsangebot ist die Bonner Innenstadt mit ihrer Fußgängerzone in etwa 10 Gehminuten erreichbar. Hier befinden sich bekannte Ketten ebenso wie individuelle Fachgeschäfte, Kaufhäuser und ein breites gastronomisches Angebot.

Auch der Bonner Wochenmarkt auf dem Marktplatz mit frischen regionalen Produkten ist schnell erreicht und unterstreicht die hohe Lebensqualität der Lage.

Neben den Einkaufsmöglichkeiten zeichnet sich die Lage durch ein breites Kultur- und Freizeitangebot aus. Nur wenige Schritte entfernt liegt die Beethovenhalle, ein traditionsreicher Konzertsaal, in dem regelmäßig klassische Konzerte, Veranstaltungen und Messen stattfinden. Auch die Bonner Oper sowie zahlreiche Museen, wie das Beethoven-Haus, befinden sich in der näheren Umgebung.

Durch die Rheinnähe ist zudem die bekannte Rheinpromenade schnell erreichbar, die zu Spaziergängen, Jogging oder Radtouren einlädt und einen hohen Freizeitwert bietet.
Die Anbindung an den öffentlichen Nahverkehr ist sehr gut: Bushaltestellen befinden sich in unmittelbarer Nähe, sodass die Bonner Innenstadt in wenigen Minuten erreicht werden kann. Auch für Studierende ist die Lage attraktiv, da die Universität sowie verschiedene Hochschulgebäude schnell per Fahrrad erreichbar sind. Mit dem Auto ist das Grundstück über die nahegelegenen Autobahnen A565 und A555 ebenfalls hervorragend angebunden.

Other Information

- EXPOSÈ & BESICHTIGUNG -

Fordern Sie unser ausführliches Exposé einfach per Nachricht über das Kontaktformular mit vollständigen Kontaktdaten an. Sie erhalten automatisch eine E-Mail mit dem Downloadlink (bitte auch den Spam-Ordner prüfen).

Nach dem Download erhalten Sie eine zweite E-Mail mit Zugang zu unserem Online-Buchungsportal – dort wählen Sie bequem einen freien Besichtigungstermin.

Alternativ kontaktieren Sie uns gerne direkt:
immoibllien@schoepf-co.de oder +49 228 538 796 0

- Weitere Unterlagen und Video-

Nach der ersten Besichtigung erhalten Sie exklusiven Zugang zu den weiteren Unterlagen und für einen zweiten Eindruck ein Video zur Immobilie

- HINWEIS -

Die Angaben im Exposé basieren auf Informationen der Eigentümer bzw. Dritter. Für deren Richtigkeit übernimmt Schöpf & Co. Immobilien keine Haftung.

Die Bilder entsprechen der Realität und sind NICHT virtuell animiert.

Energieausweis

  • A+
  • A
  • B
  • C
  • D
  • E
  • F
  • G
  • H
  • 0
  • 50
  • 100
  • 150
  • 200
  • 250
  • 300
  • 350
  • 400
  • > 450
Baujahr
1963
Endenergieverbrauch
119,8 kWh/(m²a)
Energieausweis
Verbrauchsausweis
Energieausweis gültig bis
04.12.2035
Energieeffizienzklasse
D
wesentlicher Energieträger
Fernwärme

Grundriss

Videos

Contact person

Klara Johannsen

Klara Johannsen

Assistenz Vertrieb

Schöpf & Co. Immobilien
Akazienweg 2-10
53177 Bonn

immobilien@schoepf-co.de 0228 / 538 796 0

Immobilie anfragen

Ähnliche Immobilien

Wintergarten

Bonn

# ein Haus für die Familie # sonniger Wintergarten # Fotos NICHT KI-generiert #

Vision Wohnzimmer

Bonn / Friesdorf

# Bestand mit Vision #

Wohnzimmer

Bonn / Dottendorf

# ein Haus für die Familie #

Außenansicht

Bonn

# die ganze Familie unter einem Dach #

Wohnzimmer

Bonn / Hochkreuz

# Lifestyle trifft Energieeffizienz#

Aussenansicht

Bonn / Castell

großzügiger Bungalow # beliebte Lage Bonn Castell #

Immobilie anfragen

Bitte füllen Sie dieses Feld aus.
Bitte füllen Sie dieses Feld aus.
Bitte füllen Sie dieses Feld aus.
Bitte füllen Sie dieses Feld aus.
Bitte füllen Sie dieses Feld aus.
Bitte füllen Sie dieses Feld aus.
Bitte füllen Sie dieses Feld aus.
Bitte füllen Sie dieses Feld aus.
Bitte klicken Sie dieses Kästchen an, um fortfahren zu können.