Skip to content

Objektdaten

Objektart
Wohnung
externe Objnr
26.1_YS
Wohnfläche
93 m²
Zimmer
4

Adresse

PLZ
80997
Ort
München
Kaufpreis
893.100 €

Informationen

Baujahr
2021
Verfügbar ab (Text)
Herbst 2021
Zustand
Erstbezug
Nutzungsart
Wohnen
Vermarktungsart
Kauf

Details

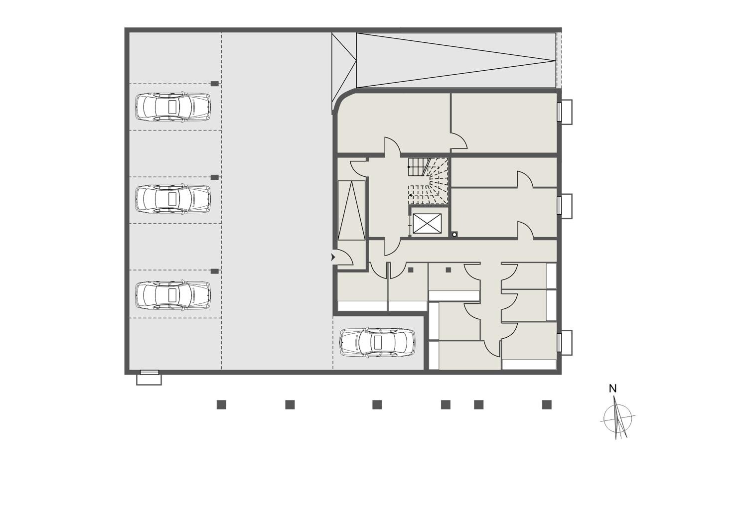
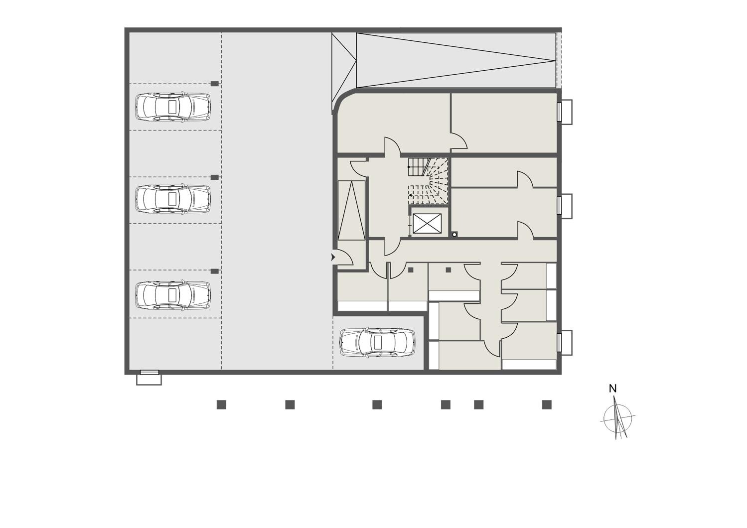
Stellplätze
1
Stellplatzart
Tiefgarage
Badezimmer
1
Gäste WC
Ja
Schlafzimmer
3
Balkon
Nein
Terrasse
Ja
Fahrstuhl
Personenaufzug

Description

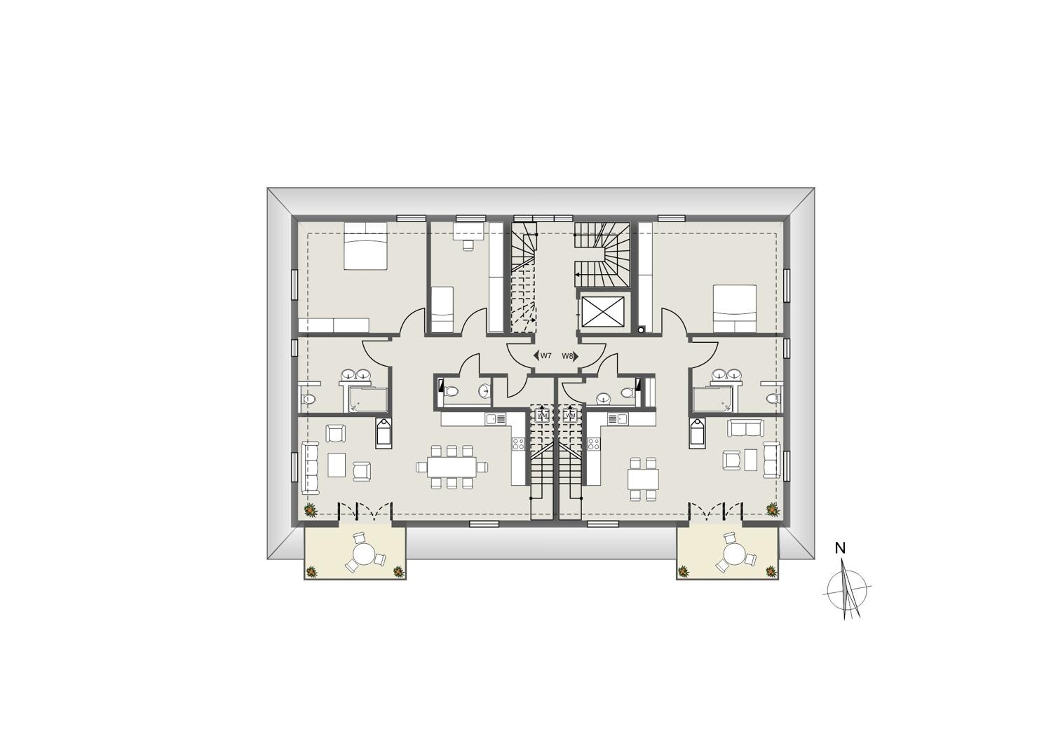
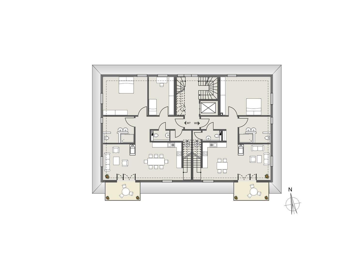
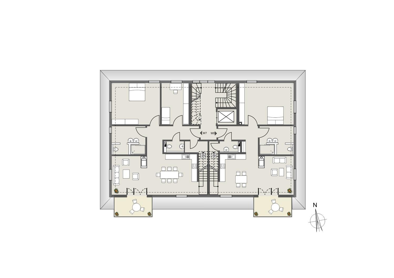
Diese 4 Zimmerwohnung befindet sich im Obergeschoss des familiären Mehrfamilienhauses mit nur acht Einheiten. Der eindrucksvolle Neubau wird in energieeffizienter Bauweise errichtet und überzeugt neben seinem stilvollen Erscheinungsbild über seine hochwertige Bauweise. Der Grundriss ist so gut durchdacht und zugeschnitten, dass sich eine optimale Raumausnutzung ergibt.

Die Wohnung Nr. 4 verfügt über einen großen Wohn-/Essbereich nebst drei Schlafzimmern, einem Bad sowie einem Gäste-WC.

Sie betreten die Wohnung über eine geräumige Diele, die Sie in den großzügigen Wohn-/Essbereich mit offener Küche führt. Hier ist der kommunikative Mittelpunkt der Wohnung. Die Gestaltung des Raumes bietet Ihnen die Möglichkeit eine Küche nach Ihren persönlichen Vorstellungen einzurichten und Ihre individuellen Wohnvorstellungen umzusetzen. Die bodentiefen Fenster sorgen zusätzlich für eine optimale Belichtung und ein angenehmes Ambiente. Die Wohnung Nr. 4 im Obergeschoss überzeugt zudem über einen Balkon, den Sie vom Wohn-/Essbereich aus betreten können.

Die Ausrichtung der Wohnung ist optimal, da sich die Schlafzimmer ruhig zum hinteren Grundstücksteil orientieren während sich der Wohn-/Essbereich nach Süden ausgerichtet und seinen Blick in den Garten und die ruhige Nachbarschaft öffnet.

Der Neubau überzeugt zudem mit vielen modernen sowie zeitgemäßen Details. In der Wohnung erwarten Sie ein ausgewähltes Echtholzparkett in eleganter Verlegeform, eine wohlige Fußbodenheizung, dreifachisolierverglaste Fensterkonstruktionen mit elektrischen Rollläden sowie ein hochwertiges Badezimmer mit einer bodengleichen Dusche und erlesenen Wand- und Bodenfliesen. Und auch bei allen anderen verbauten Produkten können Sie sich auf deren zeitlose Markenqualität verlassen.

Die hauseigene Tiefgarage steht zum Schutz Ihres Fahrzeuges bereit und ist für 35.000 Euro zusätzlich zu erwerben. Zu den Annehmlichkeiten der Wohnung gehören ein Aufzug, eine Abstellmöglichkeit für Fahrräder und Kinderwägen sowie natürlich Ihr eigenes Kellerabteil.

Equipment

ENERGIEAUSWEIS:
ist in Bearbeitung

AUSSTATTUNG
+ Etagenwohnung im OG, barrierefrei
+ 4 Zimmer
+ Südbalkon
+ großzügiger, offen gestalteter Wohn-/Essbereich
+ BUS-Verkabelung (auf Wunsch)
+ Bodentiefe Fensterelemente in einer Holz-Alu-Fensterkonstruktion (dreifachisolierverglast)
+ Alurollläden (elektrisch bedienbar, außenliegend)
+ Video-Gegensprechanlage
+ Parkett (Echtholzparkett)
+ Fliesen in allen Bädern und WCs
+ Fußbodenheizung in allen Wohn- und Schlafräumen sowie Bäder und WC, einzeln steuerbar über Raumthermostate
+ Handtuchwärmer im Bad
+ Bodengleiche Duschen mit Rainshower
+ Raumhöhe ca. 2,50 m
+ Einbaudownlights in den Bädern und Eingangsdielen mit Präsenzmeldern
+ Personenaufzug vom Untergeschoss bis ins Dachgeschoss
+ eigenes Kellerabteil
+ Pkw-Stellplatz in der Tiefgarage (auf Wunsch mit Vorrüstung für eine käufereigene PKW-Ladestation)
+ energieeffiziente Bauweise auf Basis der neuesten Energiesparverordnung (Grundwasserwärmepumpe)
+ zentrale Warmwasseraufbereitung
+ solide Erstellung in gesunder traditioneller Ziegelbauweise

Location

MÜNCHEN UNTERMENZING

Das „Dorf in der Stadt“. So wird Untermenzing liebevoll von seinen Bürgern genannt. Der Bezirk liegt westlich des Stadtzentrums Münchens und bietet beste Wohnqualität. Hier lebt man umgeben von weitläufigen Grünflächen und Wäldern und profitiert von der guten Anbindung an die inneren Bezirke. Der Würmlauf vom Starnberger See bis nach Dachau, das Naturschutzgebiet Allacher Forst sowie in die Naherholungsgebiete Lußsee und Langwieder See sind bei Spaziergängern, Radfahrern und Naturfreunden sehr beliebt.
Untermenzing ist in erster Linie ein Wohngebiet und aufgrund der vielen Grünflächen gehört es zu den beliebtesten in München. Der historische Ortskern erinnert noch immer an ein altes Bauerndorf; zu diesem Bild trägt auch die andächtige St. Martin- Kirche bei.
Die Verkehrsinfrastruktur ist ebenso ausgezeichnet. Den Autobahnring A99 und auch die A8 erreicht man in wenigen Minuten. Wer den öffentlichen Nahverkehr bevorzugt, den bringt die S2 von der Haltestelle Untermenzing in ca. 22 Minuten ins Münchner Stadtzentrum und zum Hauptbahnhof.

Karte

Other Information

Dies stellt nur eine Kurzbeschreibung des Objektes dar. Gerne senden wir Ihnen auf Anfrage weitere Unterlagen zu und sind in einem persönlichen Gespräch für Sie unter 08705 / 939 05 37 erreichbar.

Energieausweis

Baujahr
2021

Ansprechpartner

Ysabel Schöpf

Ysabel Schöpf

Immobilienberaterin
Dipl. Betriebswirtin
Geprüfte Immobilienbewerterin
(Sprengnetter)

Schöpf & Co. Immobilien
Akazienweg 2-10
53177 Bonn

ysabel.schoepf@schoepf-co.de +49(228) 538796-11

Immobilie anfragen

Ähnliche Immobilien

Aussenansicht

München

VERKAUFT

Sickenbergerstraße München1_F

München

VERKAUFT

Sickenbergerstraße München1_F

München

VERKAUFT

Sickenbergerstraße München1_F

München

VERKAUFT

Aussenanlage

München

VERKAUFT-München

Immobilie anfragen

Bitte füllen Sie dieses Feld aus.
Bitte füllen Sie dieses Feld aus.
Bitte füllen Sie dieses Feld aus.
Bitte füllen Sie dieses Feld aus.
Bitte füllen Sie dieses Feld aus.
Bitte füllen Sie dieses Feld aus.
Bitte füllen Sie dieses Feld aus.
Bitte füllen Sie dieses Feld aus.
Bitte klicken Sie dieses Kästchen an, um fortfahren zu können.